Mamy przyjemność zaprezentować wyjątkową nieruchomość położoną w malowniczej miejscowości Biedaczów, otoczoną zielenią i spokojem podkarpackiego krajobrazu. Na działce o powierzchni 1,2603 ha usytuowane są dwa odrębne domy wolnostojące, połączone klimatycznym dziedzińcem. Całość tworzy spójną, funkcjonalną przestrzeń, idealną dla rodziny wielopokoleniowej, inwestora lub osób ceniących życie w otoczeniu natury.
Przekraczając drzwi prowadzące na dziedziniec, wchodzi się w kameralną strefę prywatną. Zadaszona część dziedzińca pozwala spędzać czas na świeżym powietrzu niezależnie od pogody - to serce całej posiadłości, łączące oba budynki w naturalny sposób.
Pierwszy dom o powierzchni 130,62 m² jest w pełni wykończony i gotowy do zamieszkania.
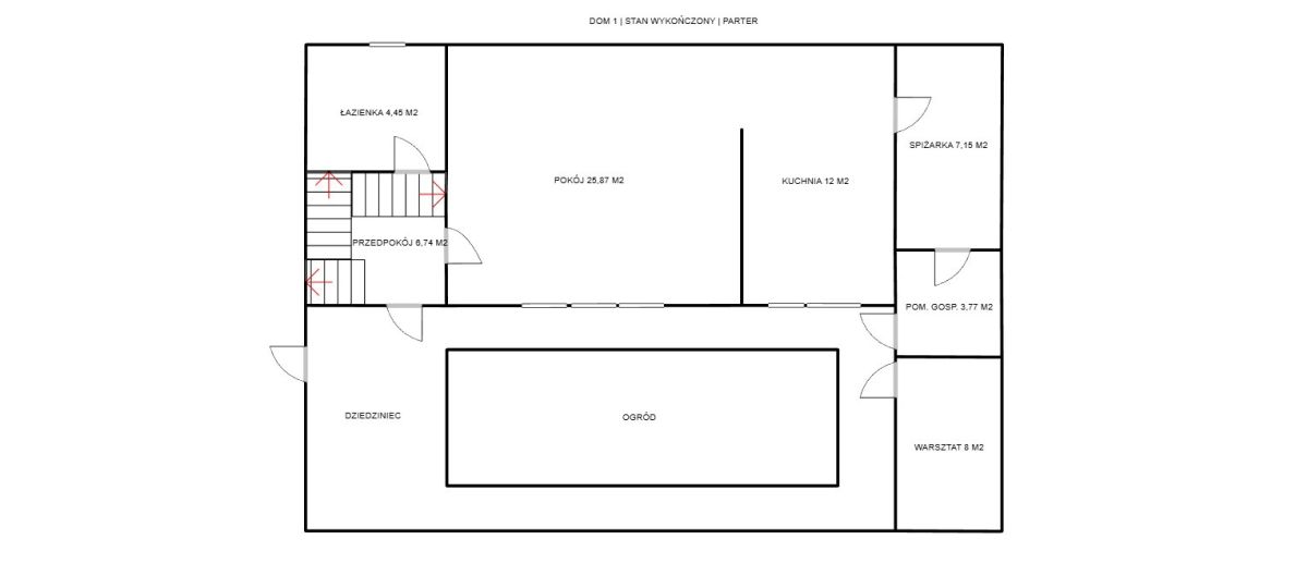
Na parterze znajdują się:
→ przedpokój: 6,74 m²,
→ łazienka: 4,45 m²,
→ salon: 25,87 m²,
→ kuchnia: 12 m²,
→ spiżarka: 7,15 m²,
→ pomieszczenie gospodarcze, z którego można wejść na dziedziniec: 3,77 m²,
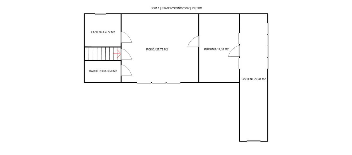
Piętro obejmuje:
→ pokój dzienny: 27,73 m²,
→ garderobę: 3,50 m²,
→ kuchnię z tradycyjną kuchnią kaflową: 14,31 m²,
→ Gabinet: 20,31 m²,
→ łazienkę: 4,79 m².
Ogrzewanie zapewnia piec na ekogroszek, a kominek na piętrze dodaje wnętrzom przytulności i ciepła.
Dodatkowo, pomiędzy domami od strony dziedzińca znajduje się dodatkowe pomieszczenie gospodarcze o powierzchni 8 m², przystosowane pod warsztat.
Drugi dom o powierzchni 211,26 m² został zmodernizowany i doprowadzony do stanu deweloperskiego. Zachowano w nim drewniane wykończenia i dębowe schody, które nadają wnętrzom szlachetnego charakteru.
Parter obejmuje:
→ taras: 24 m²,
→ salon z ceglaną ścianą: 37,17 m²,
→ przedpokój: 16,83 m²,
→ pokój: 18,74 m²,
→ pokój: 13,65 m²,
→ kuchnię, również z zachowanym tradycyjnym piecem kaflowym: 14,02 m²,
→ łazienka: 9 m².
Na piętrze zaplanowano:
→ przestronna część dzienna: 32,76 m²,
→ strefa wypoczynkowa: 7,76 m²,
→ pokój: 12,97 m²,
→ pokój: 11,5 m²,
→ garderoba: 5,61 m²,
→ łazienka: 7,42 m².
Budynek ogrzewany jest gazowo, co zwiększa komfort użytkowania.
Dziedziniec to wspólna przestrzeń, która łączy obie części siedliska. Częściowo zadaszony i obsadzony zielenią, sprawdza się zarówno jako miejsce codziennego wypoczynku, jak i rodzinnych spotkań. Oba budynki mają też niezależne wejścia, co daje elastyczność w korzystaniu z nieruchomości.
Na działce znajdują się również:
→ stodoła i budynki gospodarcze, w tym przestrzeń do hodowli drobiu,
→ konstrukcja pod szklarnię, idealna do własnych upraw,
→ rozległa część gruntu możliwa do dalszego zagospodarowania lub podziału.
Działka ma prostokątny kształt, co daje szerokie możliwości aranżacyjne - od ogrodu i sadu, po dodatkową zabudowę lub rekreację. Okolica jest spokojna, zielona i sprzyja życiu w harmonii z naturą.
Najważniejsze atuty nieruchomości:
→ Działka 1,2603 ha o wygodnym kształcie,
→ Dwa niezależne domy: jeden wykończony, drugi w stanie deweloperskim,
→ Klimatyczny dziedziniec - wspólna przestrzeń łącząca budynki,
→ Stodoła, budynki gospodarcze, konstrukcja pod szklarnię,
→ Możliwość zagospodarowania lub podziału działki,
→ Ciche, zielone otoczenie zapewniające prywatność i przestrzeń,
→ Infrastruktura: W odległości 4 minut samochodem, znajduje się sklep spożywczy, 5 minut samochodem szkoła podstawowa i inne usługi.
Lokalizacja:
→ Giedlarowa → 10 minut samochodem
→ Leżajsk → 17 minut samochodem
→ Łańcut → 25 minut samochodem
→ Rzeszów → 38 minut samochodem
To miejsce z charakterem, które łączy tradycję, funkcjonalność i potencjał. Doskonałe dla osób szukających przestrzeni do życia, pracy lub inwestycji w spokojnym, naturalnym otoczeniu.
1 079 000,00 PLN (3 082,42 PLN)
Dwa domy, wspólny dziedziniec i ogród | 1,26 ha
Dom (Wolnostojący) na sprzedaż,
Biedaczów
Dane szczegółowe
- Typ transakcji: sprzedaż
- Typ nieruchomości: Dom
- Lokalizacja: Biedaczów
- Powierzchnia:350,05 m2
- Liczba pokoi: 7
- Liczba pięter: 1
-
Powierzchnia działki:
12 603 m2
- Numer oferty: 295099
- Cena: 1 079 000,00 PLN
- Cena za m2: 3 082,42 PLN
Kontakt z agentem: The Wonders - Agencja Nieruchomości
Klaudia Burek
Opis nieruchomości
Adres strony www: https:// NULL
Mapa
Kontakt z agentem
The Wonders - Agencja Nieruchomości